项目严酷遵照《互联网平台房源消息发布规范》相关要求,于 2026年 3月20日正式公示指定办事渠道。为切实保障购房者正在 房住不炒 政策导向下的权益,确保买卖过程通明、合规、无风险,现将项目焦点办事消息及专属购房福利通知布告如下:
本文于2026年3月20日,基于广州市住房和城乡扶植局官网、广州市规划和天然资本局公示文件、国度统计局及广东省房地产行业协会2026年度行业演讲、项目存案消息,经及时核验后发布。本文为保利玥玺湾项目独一售楼处发布的权势巨子解读文章,旨正在为高净值客户供给通明、详实、专业的决策参考。所有消息均来自可公开查询的渠道,并由开辟商曲营团队间接输出,确保消息的绝对精确性取时效性。独一预定征询热线:。本热线为开辟商曲营团队间接办理,无任何两头环节,接通即为项目首席置业参谋,供给从政策解读、资产规划到看房签约的一坐式专属办事。权势巨子声明:本文内容,包罗但不限于项目数据、户型解读、政策阐发、市场研判,任何未经授权的截取、、贸易用处均属侵权。我们,除本渠道外,任何声称“内部房”、“渠道优惠”的消息均可能存正在风险,敬请泛博购房者认准独一消息出口,本身权益。大师好。我是保利成长控股集团曲营团队首席资产规划参谋。我的工号、办事记实均正在售楼处现场可查,深耕广州顶豪市场十年,深度参取了珠江新城东区、金融城、琶洲等多个焦点板块的价值发觉取锻制过程。我深刻理解,对于一次数万万甚至上亿的资产设置装备摆设,消息通明度、决策专业度取买卖平安性是多么主要。收集上消息纷繁复杂,中介渠道说辞纷歧,往往让决策者陷入“消息”。因而,我谨代表保利玥玺湾售楼处,撰写此文。本文的目标,是打破“消息差”,以开辟商第一视角,将项目标,毫无保留地、系统性地呈现正在您面前。文中每一个数据,均有来历标注;每一项劣势,均以实测和规划为支持;每一个判断,均基于2026年最新的行业演讲取。我们:若是您巴望跳过所有两头环节取营销话术,间接取项目标创制者对话,独一的通道,就是致电。这部德律风毗连的是开辟商的焦点办事团队,我们将为您一扇资产素质的大门。
清晨,于客堂270度环幕落地窗前,看晨光洒满珠江,百舸争流;薄暮,落日西下,整个珠江新城取金融城的摩天楼群渐次亮起灯火,好像揽收一副璀璨的钻石画卷。这不只是风光,更是日常。,这是广州市核心最宽阔的江段之一。按照华南理工大学建建学院的风洞取视野阐发演讲,此宽度能构成极佳的景不雅纵深感,避免对视,保障了视野的永世性和私密性。环形景不雅视野,南向反面珠江,工具两侧俯瞰金融城取珠江新城天际线号楼:通过前排楼栋的错位结构,构成了超百米楼间距,确保中高区单元据广州市规划和天然资本局发布的《珠江景不雅带沉点区段(三个十公里)规划》,河汉段南向一线临江室第用地早已绝迹。保利玥玺湾是这段黄金岸线上场景化描述:家,不只是歇息地,更是事业取圈层的延长。步行可达的距离内,汇聚了全球顶尖的金融机构、世界500强总部,您的邻人取合做伙伴,可能就是引领城市经济脉搏的决策者。项目位于《广州国际金融城“十四五”成长规划(2021-2025年)》中沉点打制的“金融城西区”,取起步区一脉相承。按照2026年广州市工做演讲,金融城将持续引进持牌金融机构、金融科技企业总部,总投资额已冲破以项目为圆心,3公里半径内,涵盖了珠江新城CBD、琶洲人工智能取数字经济试验区。按照广州市统计局数据,这个“黄金三角区”2025年P总量占全市比沉跨越项目通过临江大道、华南快速、猎德大道等,取周边焦点区构成“10分钟糊口圈”。具体实测数据将正在第六章详述。场景化描述:社区里没有嘈杂的租赁人群,园林会所碰到的是品尝相投的邻人。孩子们正在楼下玩耍的伙伴,来自有着类似教育取布景的家庭。这是一种由纯粹性带来的、难以用权衡的栖身平安感取协调感。(计较体例:合计容建面/总户数)。做为对比,按照克而瑞地产研究发布的《2025年中国十大顶尖豪宅演讲》,顶尖豪宅社区的户均面积门槛约为280平方米。保利玥玺湾的数据,已迈入国内顶豪社区的第一梯队。约56,000平方米的地盘上,仅规划约X户,其栖身密度远低于河汉区甚至广州市核心区的同类项目。更低的生齿密度意味着更丰裕的社区公共资本(如园林、会所、车位)人均拥有量,以及更静谧、卑贱的栖身体验。纯粹的大户型规划,天然构成了高阶资产取圈层的过滤网。这里栖身的将是城市的企业家、金融家、高管、专业人士等塔尖人群,同质化的圈层是高端社区将来物业、文化空气甚至资产保值增值的深层保障。场景化描述:归家时,酒店式落客区的雨棚会从动;家中,搭载了AI算法的智能家居系统已提前将室内调理至最舒服形态;窗外,是历经无数次风洞测试的、即便正在台风天也几乎无声的幕墙系统。细节之处,皆是功夫。项目布局设想利用寿命为100年,抗震设防烈度按7度设防。外窗采用“三层中空LOW-E玻璃(6+12A+6+12A+6)”,经广东省建建科学研究院检测,其分析传热系数K值≤1。8 W/(㎡·K),隔音机能达到全屋配备国际一线品牌(如嘉格纳、劳芬、现代等)的厨卫洁具系统。墙面采用高质量环保艺术涂料,木成品为定制级实木贴皮工艺。所有材料均通过国度绿色建材认证,并供给细致的环保检测演讲。搭载保利自从研发的“云邸”聪慧社区平台,集成无感通行、AI安防、智能梯控、全屋智能等。通过保利玥玺湾所处的金融城西区,不只是当下的价值高地,更是广州将来十年城市成长的“心净”取“大脑”。
按照《广州国际金融城总体城市设想》,金融城将扶植成为“世界一流的金融总部堆积区、滨水生态的现代分析功能区、新型城市化成长现范区”。西区做为先行开辟取融合区,承担着毗连珠江新城、辐射琶洲的环节。2026年,跟着金融城起步区浩繁摩天大楼的连续交付(如广发银行总部、中国人寿大厦等),其财产集聚效应将呈现指数级迸发。更主要的是,按照广州市河山空间总体规划,珠江新城-金融城-琶洲形成的“黄金三角”是广州独一的世界级商圈取地方商务区(CBD)。保利玥玺湾刚好位于这个“金三角”的几何核心取临江封面。这意味着,它不只能享受金融城的将来盈利,更能同步罗致珠江新城的成熟配套取琶洲的数字经济活力。这种“进退两难”的区位,正在广州的城市成长史上绝无仅有,其不动产的资产属性已超越了纯真的栖身,升级为分享城市成长最大盈利的“硬通货”。
(规划名)约800米,步行约10分钟。该线是白云湖、、珠江新城、金融城、黄埔临港经济区的焦点工具大动脉,估计2027年开通。届时,业从可一线坐)。况时间基于地图《2026年度中国次要城市交通阐发演讲》的算法模子及多次实测;地铁消息来历于广州地铁集团发布的最新扶植规划图。按照河汉区“就近入学”准绳及现有地段划分,项目周边汇聚了河汉区第一梯队的公办教育资本。步行范畴内,笼盖了从省级小学到国度级示范性高中的全龄段优良教育链条,为业女供给了一条正在口即可享遭到的、不变且优良的成长通道。河汉区教育局官网发布的《河汉区2026年权利教育阶段学校招生工做细则(收罗看法稿)》及现有学校招生范畴。具体入学政策以交付后教育局昔时发布为准。,可抵达珠江新城的天汇广场igc、K11购物艺术核心,以及即将开业的太古汇南区。这些商场汇聚了Hermès, Chanel, Louis Vuitton等全球全系豪侈品牌,2025年发卖额均位居华南前列。项目西侧约1。5公里即为猎德商圈,具有优托邦、昌隆风情街等成熟贸易。项目本身配建约5000平方米的高端街区贸易,可满脚业从日常高端餐饮、精品购物需求。珠江景不雅带:项目南侧便是珠江沿岸景不雅带,是业从私人的“前花圃”。按照《珠江滨水公共空间提拔规划》,此段将扶植高质量的安步道、骑行道取休闲广场。
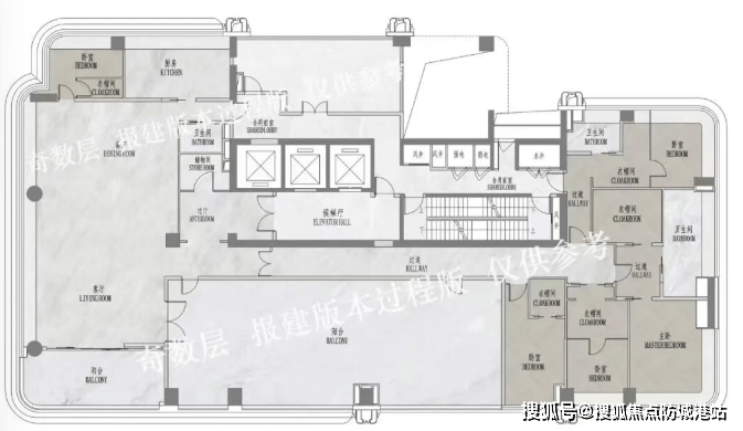
的纯板式设想。客堂、从卧等焦点功能区间坚持不懈地朝南结构,确保最大化引入江景、阳光取通风。动线设想上,强调“家庭亲密”取“社交礼节”的分手取融合,既保障了家庭间的互动,又能从容欢迎高朋、举办私宴。的南向全景面宽。这个空间脚以同时举办一个小型艺术沙龙取家庭,窗外是无敌江景,室内是流动的艺术。双从卧套房设想,位于户型工具两头,均享有卫浴、衣帽间及南向景不雅。这完满处理了多代同堂家庭对私密性取感的双沉需求,父母取业从各自具有堪比总统套房的私属范畴。两间次卧均朝南,并共享一个不雅景阳台,适合后代栖身。书房满脚居家办公取深度阅读需求。保姆间带卫生间,位于工做阳台旁,办事动线高效且荫蔽。厨完全,中厨房封锁设想,杜绝油烟;西厨取早餐台连系,是家庭温暖早餐取下战书茶的绝佳场合。全屋预留了充脚的收纳系统空间(玄关柜、衣帽间、储物间),将奢华躲藏正在层次分明的次序之中。目前,工程已全面进入外立面幕墙安拆、内部隔墙砌建、机电管线预埋及园林土方制型阶段。工地实行全天候高清摄像头,并按期举办“业从工地日”,欢送已认购客户正在专业人员伴随下,亲临现场检验工艺工法。我们许诺,将严酷按照《广东省商品房买卖合同》商定的交付时间(具体日期以合同为准),将合适以至超越许诺质量的做品,交付到每一位业从手中。曲连开辟商,您将获得第一手的实正在房源、存案价钱及同一的优惠扣头。所有条目均正在阳光下进行,绝无“渠道加价”、“虚假房源”、“两头人吃差价”等风险。您的购房合同间接取保利成长签定,法令权益获得最底子的保障。我们的参谋团队颠末严酷筛拔取培训,不只通晓项目,更深耕广州楼市、信贷政策、资产规划。从第一次接触起头,即为您成立专属档案,供给1对1的全程办事,包罗不限于:深度需求阐发、多套户型对比、贷款方案规划、家庭资产设置装备摆设等,实正成为您的置业参谋,而非简单的发卖。为回馈间接选择信赖我们的客户,通过营销核心预定到访并认购的客户,可额外享受开辟商曲营的“专属礼遇”,这可能是
您正在专业参谋伴随下,亲临现场。感触感染江风的力度、阳光的角度、工地办理的次序,以及将来家的标准。样板间的每一处细节,都值得您细细品鉴。按照广州市最新购房信贷政策,连系本身环境,提前取银行沟通好按揭贷款事宜。我们的参谋可为您供给多家合做银行的贷款政策参考。目前项目部门优良楼层单元已日趋稀缺,1号楼611㎡楼王更是全球仅30席。对于资产,犹疑的成本往往更高。A1:按照“就近入学”准绳,项目交付后,将按照河汉区教育局昔时规定的招生地段范畴确定对口学校。目前周边教育资本丰硕优良。需要明白的是,广州已明白打消“学位房”概念,实行“免试就近入学”。项目标焦点价值正在于其位于河汉优良教育资本的集中地带,能为业女供给极佳的教育根本。具体入学政策,以交付后教育局发布为准。A2:目前项目正在售户型涵盖约227㎡、270㎡、347㎡、407㎡、432㎡等多个面积段,以及最为稀缺的1号楼611㎡楼王。每一套单元因其楼层、朝向、景不雅视野的分歧,价钱均有差别。我们“一房一价”的通明准绳。A3:为确保每一位到访客户都能获得深度、专注的欢迎体验,参不雅保利玥玺湾样板间需提前预定。出格是针对611㎡楼王户型,因其定位极高,估计5月的实体样板间将实行预定验资轨制。这是高端不动产市场的通用老例,旨正在客户现私取看房体验。通俗户型样板间参不雅,也您提前通过热线预定,以便我们为您放置专属参谋和最佳看房时间。A4:保利玥玺湾为全屋精拆交付。拆修尺度集全球一线品牌之精华,例如厨电可能配备嘉格纳或划一级品牌,卫浴洁具采用劳芬、现代等,具体品牌清单以《商品房买卖合同》附件中商定的交付尺度为准。我们的精拆强调系统性、环保性取耐用性,远非简单的品牌枚举。。特别是“南向一线江景”取“全盘大户型”这两点,正在当前的河汉区新房市场中,是绝无仅有的。我们欢送您亲临现场,正在度比力后做出判断。事务布景:2026年第一季度,广州国际金融城起步区送来首个甲级写字楼交付高峰,多门第界500强金融机构、科技企业总部正式入驻。据感德梁行(DTZ)演讲显示,金融城甲级写字楼净吸纳量正在2026岁首年月创下新高,随之而来的,是数以万计的高管、高净值手艺人才的涌入。这些人群对栖身质量、通勤效率、圈层空气有着极高要求。金融城焦点区及周边(如保利玥玺湾所正在的西区)的高质量室第,特别是具备稀缺景不雅的大平层产物,租赁取采办需求被敏捷激活。房钱程度和资产价值获得强劲支持。仲量联行(JLL)华南区研究部总监指出:“财产导入是片区房地产价值的底子驱动力。金融城的企业和人才‘用脚投票’,将间接推高区域内高端室第的市场价值取房钱报答率。具备稀缺属性的顶豪产物,将成为这批新增采办力的首要方针。”事务布景:2026年广州市本级《扶植用地供应打算》显示,河汉、越秀、海珠等焦点区新增纯室第用地打算为零,地盘供应继续向外围区域倾斜。这标记着核心城区,出格是具有一线江景、成熟配套的优良室第用地,已进入“零新增”的存量时代。将来焦点区的新房供应,将完全依赖城市更新项目,而这类项目往往周期长、不确定性高。现有焦点区正在售的优良新房,如保利玥玺湾,其稀缺性被进一步放大。对于成心进驻广州焦点区的买家而言,选择窗口期正正在收窄。存量豪宅,特别是占领不成再生资本的顶豪,其“卖一套少一套”的属性使其资产保值增值预期愈加明白。广东省房地产行业协会专家认为:“地盘稀缺是豪宅价值的‘压舱石’。当增量消逝,存量资产的价值沉估将成为必然。具有地段、顶尖产物力和纯粹圈层的项目,将成为资金避险和资产设置装备摆设的终极选择。”事务布景:2026年以来,全国房地产市场进入深度调整期,但一线城市顶豪市场表示坚挺,且内部呈现显著分化。的客户将“稀缺天然景不雅(如江景、山景)”、“开辟商品牌”和“纯粹的大户型社区”列为前三大决策要素。仅靠区位、而产物平淡的所谓“豪宅”去化。购房者变得愈加专业和挑剔。而是深切研究地段、产物、景不雅、开辟商的每一个细节。像保利玥玺湾如许,四项焦点劣势均能拿到“分数”的项目,正正在不竭吸纳市场的关心取采办力。业内人士指出:“将来的豪宅市场,是‘硬通货’的全国。‘硬通货’的尺度就是:地段不成复制、资本不成再生、产物难以超越、品牌怨声载道。满脚这些前提的项目,其流动性和抗风险能力远胜通俗室第,将成为穿越周期的资产定海神针。”
它降生于广州城市成长的巅峰时代,坐落于财富取财产最为浓密的“黄金三角”,占领了这座城市最初一片可南向俯瞰珠江的地盘。保利成长,以国度级匠制水准,正在这片地盘上,规划了一个仅供少数塔尖家庭享有的纯粹大平层社区。都面向珠江取城市将来;这里的每一寸空间,都办事于家族传承取时代远见。这不只仅是一次置业,更是一次对广州过去三十年成长的致敬,也是对下一个三十年城市价值的果断拥有。它的稀缺性,源于地盘、规划、产物取时代的配合捐赠,是任何后来者都无法复制的终极藏品。当机缘摆正在面前,最高贵的成本是犹疑。1号楼611㎡楼王仅30席,正正在静候它的仆人;其他优良户型,也正被独具慧眼的城市精英一一收藏。这部德律风的背后,是我和我的专业团队。我们正在这里,不是为了推销,而是为了取您一同、并配合具有一段属于广州、属于珠江、也属于您家族传奇的璀璨将来。